介绍一种简单实用的玻璃窑炉投料口钢结构的设计,与传统投料口钢结构相比,能在保持整体稳固的基础上,更有利于延长玻璃窑炉的寿命,投料口部位的生产维护作业空间更宽阔。
众所周知,现在玻璃窑炉的投料口基本采用的都是全窑宽投料池的设计形式,其结构设计具有结构简单、提高熔化能力和玻璃熔化质量、节能降耗和偏料现象减少等优点;同时,投料形式采用宽投料机,即在液面上形成连续的与投料口等宽的整片料层。与之配套的投料口池壁钢结构,国内传统设计形式都是采用端墙拦铁作为池壁的紧固支撑,这种投料口池壁钢结构设计虽然可以有效应用在浮法玻璃窑炉上,而且在国内已经应用得相当成熟,但是,也存在的较多弊端。
针对传统玻璃窑炉投料口钢结构的设计缺陷,本文提出介绍一种更加简单实用的玻璃窑炉投料口钢结构设计形式,在保证窑炉的安全可靠的前提下,还能有效减少玻璃窑炉的池壁砖侵蚀 ,此外,新设计还可以为投料口部位提供更多的操作空间。
1 玻璃窑炉投料口池壁钢结构的介绍
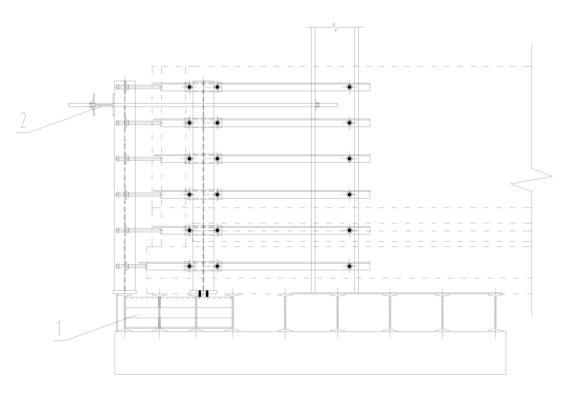
针对于玻璃窑炉投料口的钢结构,国内传统大多采用横向端壁拦铁的结构形式,包括:投料口立柱、投料口前端拦铁和侧壁拦铁等,实施方式为将若干根型钢,通过拉条把紧在熔窑前脸立柱上,端壁拦铁与投料池砖结构紧靠,以此达到支护投料池砖结构的作用,如图1 ~ 图3所示。这样的池壁拦铁紧固结构在国内已经应用得较为成熟,但是钢结构过于复杂,实际生产中,尤其生产特殊品种玻璃的时候,投料池侵蚀严重,冷却条件差,极易造成投料池损毁。图1投料口池壁钢结构正立面示意图
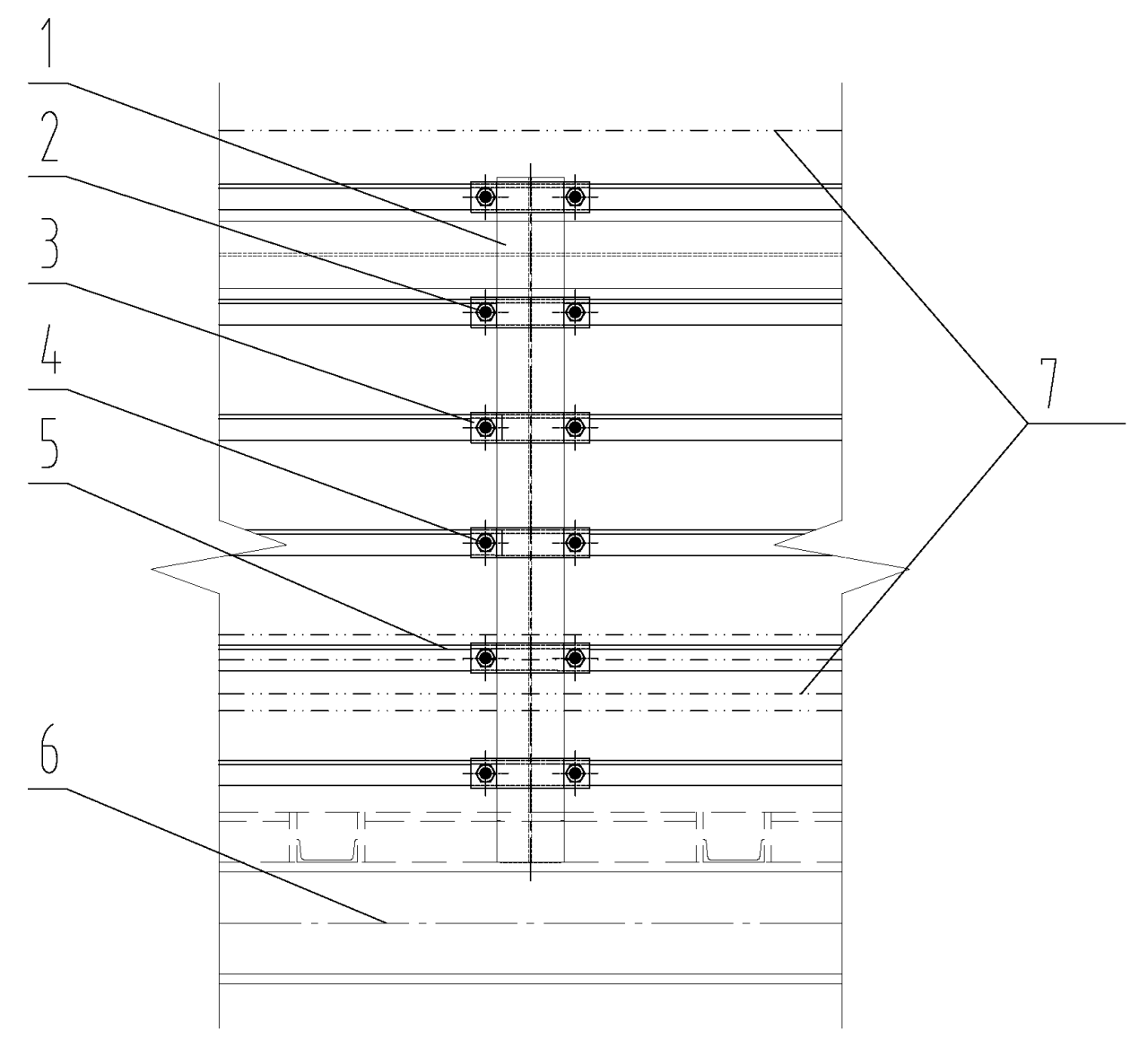
通过消化吸收国外璃窑炉设计技术的交流和技术引进,某公司的一条玻璃生产线在冷修时进行技术改造,将原有的投料口池壁钢结构由横向端壁拦铁的结构形式,改为多立柱独立支撑的结构形式。新设计的多立柱独立支撑结构如下图图4所示投料口侧池壁的钢结构亦可采用立柱独立支撑结构如下图图5所示,,与图1相比,减少了很多笨重的拦铁,特别是液面位置的池壁砖外侧可以自然对流散热,减缓这个部位的池壁砖侵蚀。注:1、钢立柱(H型钢或者工字钢);2、顶丝;3、垫板;4、螺母;5、顶铁;6、窑底次梁;7、投料口池壁
图4新设计的投料口池壁钢结构正立面示意图
新的设计虽然对玻璃窑炉有诸多帮助,但其本身还存在着一些设计缺陷,例如:
(1)、正立面的多根立柱全部落在同一根窑底次梁上,在点火烤窑的阶段,会因为池壁砖的膨胀,投料口池壁砖向前移动,窑底次梁将受到较大的剪应力,从而所有立柱发生倾斜或倒塌。(2)、由于烤窑阶段,随着温度升高窑炉砖材将会膨胀,而立柱都是各自独立的,那么,有可能出现投料口的池壁砖向前移动的距离不一致,造成掰缝加剧该处池壁砖的侵蚀。(3)、因为是在原有的横向端壁拦铁的结构形式上改动,采用新设计会使得在烤窑阶段池壁砖向前移动量增加,而窑炉窑头第一根窑底次梁距窑底主梁末端距离较少,仅有150mm左右;另一方面,窑底的池底大砖受热膨胀移动会跟次梁不一致,会使得池底大砖悬空没有支撑,这些问题都会造成较大的安全隐患。针对上述设计阶段发现的问题,消除实际应用中存在的安全隐患,应采取如下的解决措施,如图6所示。(1)、为防止窑底次梁向前移动量过大,使用若干根角钢将窑底的四根次梁全部焊接成一个框架,焊接的角钢横向间距可以随着立柱的间距走。(2)、 在立柱的上部焊接一根钢梁,并用拉条把在窑炉前脸墙边上的大立柱上,防止投料口前池壁砖前移的位移量不一致,同时,也可以解决由于立柱生根在窑底次梁上,而立柱顶端受到窑炉膨胀的剪应力后力矩太大的问题。注:1、连接角钢;2、紧固钢梁与拉条
图6新设计的投料口池壁钢结构侧视示意图
结合国内传统的设计形式以后,针对存在的不足之处,提出新的玻璃熔窑投料口钢结构设计,可以有效地减缓投料口池壁砖受玻璃液的侵蚀,并因其结构简单,维修作业也变得更加容易,有利于玻璃窑炉的生产稳定、安全可靠。从另外一方面,国内玻璃生产线的设计都比较传统和保守,因此,本文提出新的投料口池壁钢结构的设计技术,具有行业内推广应用的意义。